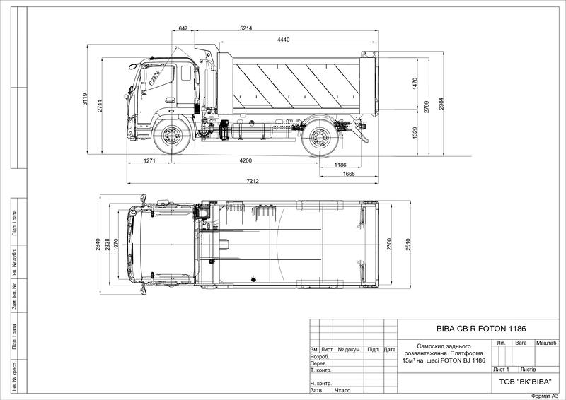
Самоскид заднього розвантаження CB R FOTON 1186 з підвищенною місткістю кузова
Самоскид VIVA CB R FOTON 1186 з підвищеною місткістю кузова — це практичне та економічно вигідне рішення для щоденної роботи у будівництві, комунальному господарстві та логістиці сипких матеріалів. Автомобіль побудований на надійному шасі Foton AUMAN BJ 1186, яке поєднує витривалість, простоту обслуговування та оптимальні експлуатаційні витрати. Дизельний двигун об’ємом 6,69 л потужністю 261 к.с. у парі з механічною коробкою передач забезпечує стабільну тягу, передбачувану роботу та ефективне використання пального. Колісна формула 4×2 робить автомобіль маневровим і зручним для роботи в міських умовах та на будівельних майданчиках з обмеженим простором. Самоскид оснащений кузовом заднього розвантаження зі збільшеною місткістю, що дозволяє перевозити більше матеріалу за один рейс та підвищувати загальну продуктивність автопарку. Посилена конструкція надбудови розрахована на інтенсивні робочі цикли та тривалий строк експлуатації. VIVA CB R FOTON 1186 — це збалансований самоскид для тих, хто цінує надійність, економічність і максимальну віддачу від кожного кілометра роботи.
Комфортна та компактна 3-місна кабіна зі спальним місцем:
Продумана ергономіка, зручна посадка та можливість повноцінного відпочинку для водія й екіпажу під час тривалих змін.
Потужний міцний гідроциліндр IPH (Penta):
Забезпечує стабільне піднімання кузова, точність роботи та витривалість навіть під максимальними навантаженнями.
Великі шини 295/80R22.5 для збільшення кліренсу:
Забезпечує прохідність та впевнену роботу техніки на нерівних і складних ділянках дороги.
Надійне полісезонне тентування з можливістю пломбування:
Захищає вантаж у будь-яку пору року та забезпечує додаткову безпеку під час транспортування.
Додаткова інформація
| Модель та найменування шасі | FOTON AUMAN BJ 1186 GVW |
|---|---|
| Об'єм двигуна, л | 6.69 |
| Потужність двигуна, к.с. | 261 |
| КПП | механічна |
| Колісна формула | 4х2 |
| Колісна база, мм | 4200 |
| Шини | 295/80 R22,5 |
| Тип кабіни | зі спальним місцем |
| Кількість місць | 3 |
| Паливний бак, л | 260 |
| Повна маса ТЗ, кг | 18000 |
| Висота самоскиду, мм | 3119 |
| Довжина самоскиду, мм | 7212 |
| Ширина самоскиду, мм | 2510 |
| Висота кузова, мм | 1470 |
| Довжина кузова, мм | 4440 |
| Ширина кузова, мм | 2300 |
| Місткість кузова, куб. м | 15 |
| Висота бортів кузова, мм | 1470 |
| Напрямок відкривання борту | знизу догори |
| Матеріал днища | Сталь S355 |
| Товщина днища, мм | 5 |
| Матеріал боковин | Сталь S355 |
| Товщина боковин, мм | 4 |
| Вантажопідйомність, кг | 9200 |
| Маса обладнання, кг | 3200 |
| Тип кріплення циліндру | фронтальний з верхнім кріпленням |
| Напрямок розвантаження | назад |
| Гарантія | 12 місяців |
| Комплектація | автоматичні замки заднього борту кузова, антигравійний захист надрамника та зовн. днища кузова, бокові та задній захисні протипідкатні пристрої, бронзові підшипники ковзання для фронтального циліндру, гальванічне покриття всіх пальців, гачки для кріплення тенту, гідравлічний бак 60 л з н/ж сталі з фільтром та краном, гідравлічний насос шестеренчатий, гідророзподільник IPH, Італія, гідроциліндр підйому кузова INTERPUMP HYDRAULICS, Італія, два протипідкатних башмака з кронштейнами, денні ходові вогні, джойстик керування IPH, Італія, електричний підігрів дзеркал, електросклопідіймачі, зумер заднього ходу, кондиціонер, кронштейн запасного колеса з лебідкою, кут підйому не менше 45°, магнітола (радіо/MP3), матеріал кузова та надрамника – ST 355, одна гарячеоцинкована драбина на кузові, пластикові крила для коліс задньої вісі, пластикові крила з бризковиками, рульова колонка, що регулюється, спальне місце, функція стряхування кузова при розвантажені, центральний замок |
| Опції | антивібраційний замок, бронзові підшипники ковзання для основної вісі, вибір кольору, додаткова гідролінія на причіп, додаткова КВП, єврофаркоп, краново-маніпуляторна установка, кузов зі сталі HARDOX, кузов зі сталі STRENX 700 (-1мм товщини), металеві крила для коліс задньої вісі, поливомийне обладнання в кузов, система ручного автономного підняття кузова, складна драбина на кузові, тент з козирком, тент з приводом, трекер GPS стеження, фронтальна щітка |
















