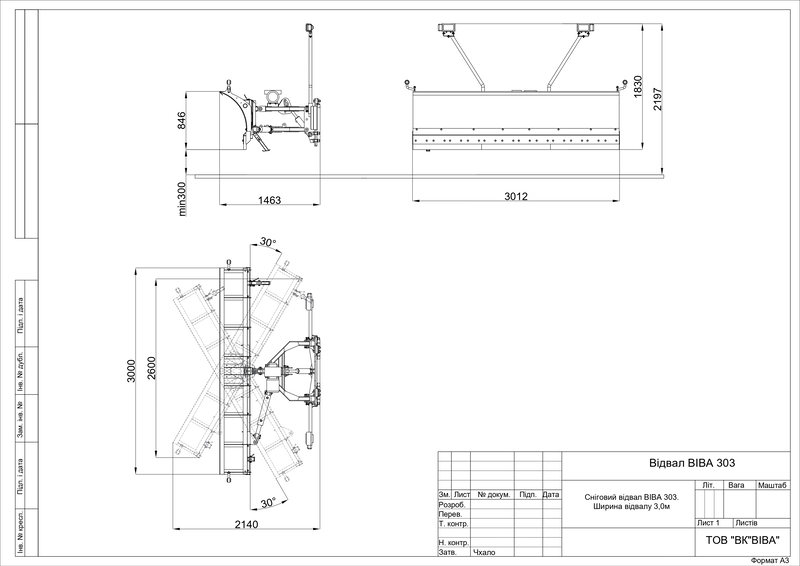
Сніговий відвал 303
Багатофункціональність вантажного автомобіля забезпечується за рахунок можливості використання відвалу для прибирання снігу. Відвал встановлюється на автомобілі загальною масою від 12 тон забезпечуючи ефективне прибирання снігу навіть під час сильних снігопадів. Конструкція кріпиться до автомобільного шасі за допомогою плит, що відповідають європейському стандарту. Змінне пластикове лезо посилено металевими ребрами жорсткості. Керування відвалом здійснюється дистанційно, з кабіни водія за допомогою гідравліки. Цей агрегат покращує універсальність і прохідність машини в холодну пору року, забезпечуючи належний догляд за дорожним полотном. Відвал обладнано додатковими комбінованими фарами з показчиками поворотів на рівні лобового скла.
Додаткова інформація
| Сезон | зима |
|---|---|
| Довжина леза відвала, мм | 3000 |
| Розмір леза по висоті, мм | 1200 |
| Шир. оброб. зони плуга, ≥ мм | 2650 |
| Ширина леза, мм | 855 |
| Матеріал леза | високоякісний поліетилен високого тиску |
| Тип приводу робочих органів | електро – гідравлічний |
| Тип приводу підйом/опуск. | гідравлічний |
| Тип приводу на поворот | ручний |
| Кут повороту ° | 30 |
| Система слідк. за рельєфом | ні |
| Рух. лемехи под. перешкод | ні |
| Тип та розмір ножів | 1000*200*40 |
| Можливість сезон. демонтажу | так |
| Комп. опор для сезон. зберіг. | так |
| Вага обладнання, кг | 450 |












