Автомобиль вакуумный ВІВА АС-0701, на базе автомобильного шасси JAC N90, предназначен для вакуумного сбора, транспортировки и слива жидких отходов, не содержащих взрывоопасных или горючих веществ. Конструкция автомобиля включает шасси, герметичную цистерну объемом 4 м³, вакуумный насос итальянского производства с гидравлическим приводом и автоматической системой смазки, сигнально-предохранительное устройство, приемный люк с всасывающим шлангом, систему управления кранами и трубопроводом, а также дополнительное электрооборудование. Заполнение цистерны осуществляется вакуумным насосом с производительностью 261 м³/ч и гарантированной глубиной всасывания до 5 метров, а опорожнение — самотеком или под давлением воздуха, подаваемого тем же насосом. Надежная конструкция, современное оборудование и эффективный дизельный двигатель обеспечивают стабильную, производительную и безопасную работу в условиях городской и промышленной инфраструктуры
Вакуумный автомобиль VIVA АС 0701
Компактная 3-местная кабина:
Обеспечивает комфорт и эргономику водителя и экипажа, сохраняя при этом оптимальные габариты для маневрирования в любых условиях.
Экономный дизельный двигатель Cummins:
Сочетает надежность и производительность, позволяя выполнять сложные задачи с оптимальными расходами топлива.
Мощный итальянский аскиально-поршневой насос:
Сердце вакуумной системы обеспечивает стабильную тягу и безупречную работу автомобиля даже под высокими нагрузками.
Удобный объемный умывальник:
Обеспечивает удобную и гигиеническую работу экипажа даже в полевых условиях.
Additional information
| Модель и наименование шасси | JAC N90S |
|---|---|
| Тип оборудования | Ассенизатор |
| Объем двигателя, л | 3.76 |
| Мощность двигателя, л.с. | 152 |
| КПП | механическая 6-ти ступенчатая |
| Колесная формула | 4х2 |
| Колесная база, мм | 3845 |
| Шины | 215/75 R17.5 |
| Тип кабины | без спального места |
| Количество мест | 3 |
| Высота автомобиля, мм | 2350 |
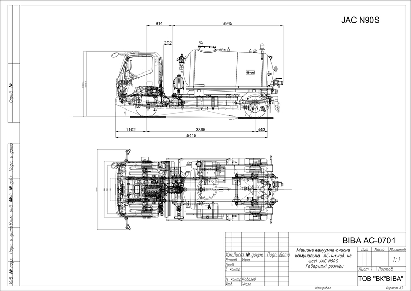
| Длина автомобиля, мм | 5415 |
| Ширина автомобиля, мм | 2852 |
| Емкость цистерны, куб.м | 4 |
| Толщина стен цистерны, мм | 4 |
| Прод-сть вак.насоса, куб.м/ч | 261 |
| Наибольшее разрежение, МПА | 0.085 |
| Постоянное разрежение, МПА | 0.08 |
| Глубина всасывания, м | 4.5 |
| Швидкість напов. цистерни, хв | 6-8 |
| Скорость спор. цистерны, мин | 8-10 |
| Гарантия | 12 месяцев |
| Комплектация | 1 LED фонарь подсветки рабочей зоны, 1 лоток для транспортировки рукава справа по борту, 1 приемный лючок гильотинного типа, 2 окошка контроля уровня наполнения цистерны, бак для масла с уровнем и термометром, боковые противоподкатные защиты слева/справа, вакуумный насос с гидравлическим приводом, Италия., гидравлический шестеренчатый насос для АС-4,5,6,7,8, клапаны ограничения избыточного вакуума и давления, кондиционер, кронштейн запасного колеса с лебедкой, лестница на цистерне, магнитола (радио/MP3), напорный рукав 6 м диаметром 102 мм, CAM-LOCK, передние и задние противотуманные фары, пластиковые крылья для колес задней оси, пластиковые крылья с брызговиками, рукомойник, устройство для слива остатков во впитывающем рукаве, центральный замок с дистанционным управлением, электрический подогрев зеркал, электростеклоподъемники |
| Опции | 1 вспомогательная всасывающая магистраль с кран-шаром, 1 дополнительное окошко контроля уровня наполнения цистерны, 1 тубус для транспортировки дополнительного всасывающего рукава, 4 м, гидравлические замки заднего льда, гидравлический привод задней крышки для АС, доплата за аксиально-поршневой гидравлический насос (для АС-4,5,6,7,8), дополнительный всасывающий металлический удлинитель 1,5м, CAM-LOCK, дополнительный всасывающий металлический удлинитель 2,5м, CAM-LOCK, дополнительный всасывающий рукав 4 м, 102 мм, CAM-LOCK, мойка высокого давления с баком 200 л и инерционной катушкой, отвал для уборки снега ВЛІВ-253 (гидравлический автономные органы управления, пластиковое лезвие), отвал для уборки снега ВЛІВ-253 GP (гидравлический автономный подъем, пластиковое лезвие), пульт дистанционного управления 10 м, система AIRLIFT |














