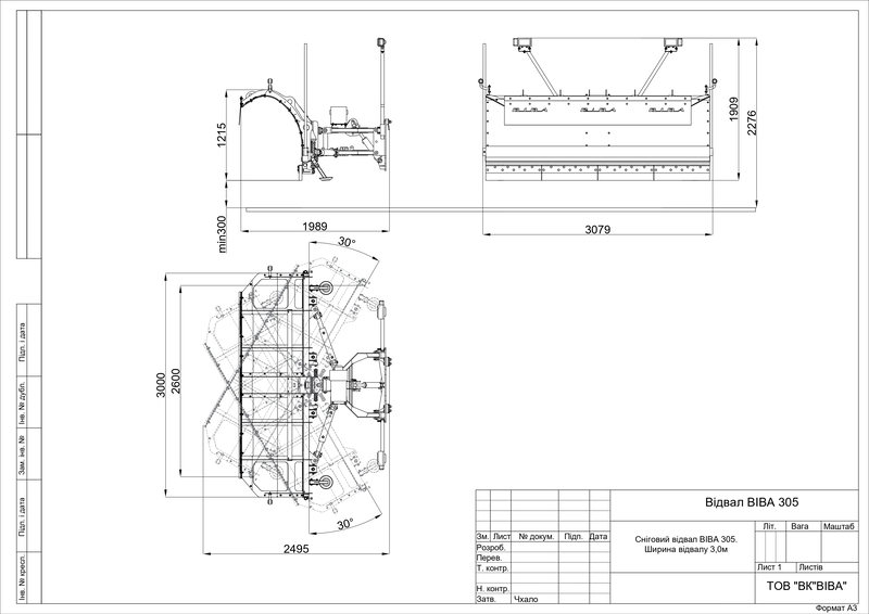
Снежный отвал 305
Многофункциональность грузового автомобиля обеспечивается за счёт возможности использования отвала для уборки снега. Отвал устанавливается на автомобили с полной массой от 19 тонн, обеспечивая эффективную очистку даже во время сильных снегопадов. Конструкция крепится к автомобильному шасси с помощью плит, соответствующих европейскому стандарту. Сменное пластиковое лезвие усилено металлическими рёбрами жёсткости. Управление отвалом осуществляется дистанционно из кабины водителя с помощью гидравлики. Этот агрегат повышает универсальность и проходимость машины в холодное время года, обеспечивая надлежащий уход за дорожным полотном. Отвал оснащён дополнительными комбинированными фарами с указателями поворота на уровне лобового стекла.
Возможность быстрого монтажа и демонтажа без посторонних средств:
Минимум времени на установку и максимальное удобство в ежедневной эксплуатации.
Удобный пульт управления отвалом прямо из кабины:
Позволяет точно управлять положением отвала без выхода из кабины.
Лезвие отвала из полиэтилена высокого давления с дополнительными металлическими лезвиями жесткости:
Сочетание эластичности, прочности и продолжительного ресурса эксплуатации.
Мягкая и динамичная система преодоления препятствий на дороге:
Обеспечивает плавное движение отвала без ударных нагрузок и повреждения покрытия.
Additional information
| Сезон | зима |
|---|---|
| Длина лезвия отвала, мм | 3000 |
| Размер лезвия по высоте, мм | 1200 |
| Шир. обработ. зоны плуга, ≥ мм | 2650 |
| Ширина лезвия, мм | 855 |
| Материал лезвия | высококачественный полиэтилен высокого давления |
| Тип привода рабочих органов | электро-гидравлический |
| Тип привода подъем/опуск. | гидравлический |
| Тип привода на поворот | гидравлический |
| Угол поворота ° | 30 |
| Система слеж. по рельефу | да |
| Подвижность лемехи под. препятствий | да |
| Тип и размер ножей | 1000*200*40 |
| Возможность сезон. демонтажа | да |
| Комп. опор для сезон. сохранен. | да |
| Вес оборудования, кг | 570 |














