Самосвал СВ R JAC N200
Самосвал CB R JAC N200 – мощный и надёжный помощник для строительства и хозяйственных работ. Построенный на базе проверенного шасси JAC N200, он сочетает прочность, функциональность и эффективность. Кузов из высокопрочной стали с задней разгрузкой усилен рёбрами жёсткости, что гарантирует устойчивость и долговечность даже в сложных условиях. Большой объём кузова и мощный двигатель позволяют легко перевозить значительные объёмы материалов, минимизируя простои и повышая производительность. CB R JAC N200 – надёжная техника для дорожной, строительной и коммунальной отраслей, которая справляется с любой задачей!
Просторная 3-местная кабина со спальным местом:
позволяет совмещать интенсивную работу на маршруте с комфортными условиями для восстановления сил в любое время.
Прочный кузов из конструкционной стали европейского качества:
Созданный выдерживать интенсивные нагрузки и работать без деформаций в тяжелых условиях.
Крепкий итальянский гидроцилиндр:
IPH (PENTA) обеспечивает мощный и стабильный подъем бункера мусоровоза даже под максимальной нагрузкой.
Оборудование отвалом под зимний сезон:
отвал позволяет быстро освобождать территорию от снега и льда, сохраняя высокую производительность в любую непогоду.
Additional information
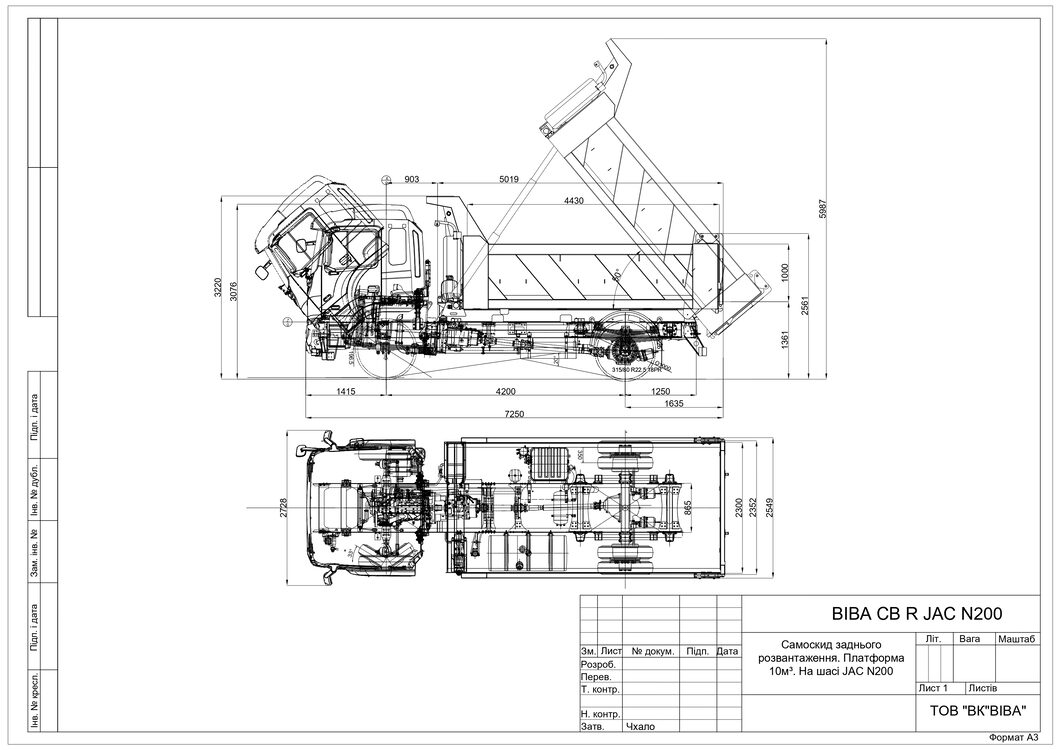
| Модель и наименование шасси | JAC N944S-N200 |
|---|---|
| Объем двигателя, л | 6.7 |
| Мощность двигателя, л.с. | 227 |
| КПП | механическая |
| Колесная формула | 4х2 |
| Колесная база, мм | 4200 |
| Шины | 315/80 R 22,5 |
| Тип кабины | со спальным местом |
| Количество мест | 3 |
| Топливный бак, л | 400 |
| Полная масса ТС, кг | 19980 |
| Высота самосвала, мм | 3220 |
| Длина самосвала, мм | 7250 |
| Ширина самосвала, мм | 2549 |
| Высота кузова, мм | 1000 |
| Длина кузова, мм | 4430 |
| Ширина кузова, мм | 2300 |
| Емкость кузова, куб. м | 10 |
| Высота бортов кузова, мм | 1000 |
| Направление открывания борта | снизу вверх |
| Материал днища | Сталь S355 |
| Толщина днища, мм | 5 |
| Материал боковин | Сталь S355 |
| Толщина боковин, мм | 4 |
| Грузоподъемность, кг | 11000 |
| Масса оборудования, кг | 2900 |
| Тип крепления цилиндра | фронтальный с верхним креплением |
| Направление разгрузки | назад |
| Гарантия | 12 месяцев |
| Комплектация | ABS, ASR, ESC, автоматические замки заднего борта кузова, автоматические цепные замки заднего борта, алюминиевые боковые защитные противоподкатные устройства, антигравийная защита надрамника и внеш. днища кузова, боковые и задние защитные противоподкатные устройства, бронзовые подшипники скольжения для фронтального цилиндра, выпускной вспомогательный тормоз, гальваническое покрытие всех пальцев, гидравлический бак 60 л из н/ж стали с фильтром и краном, гидравлический насос шестеренный, гидрораспределитель IPH, Италия, гидроцилиндр подъема кузова INTERPUMP HYDRAULICS, Италия, два противоподкатных башмака с кронштейнами, джойстик управления IPH, Италия, дополнительное утепление кабины, задний стабилизатор поперечной стойкости, кондиционер, крепкий кузов со сплошными сварными швами, кронштейн запасного колеса с лебедкой, круиз-контроль, крючки для крепления тента, материал кузова и надрамника – 09г2с или ST355, наклонная передняя стенка с козырьком, одна горячеоцинкованная лестница на кузове, окрашивание эпоксидной почвой и акриловой эмалью, отопитель салона повышенной производительности, пескоструйная обработка металла, пластиковые крылья для колес задней оси, пластиковые крылья для колес задней оси для автомобилей 4х2, пневмосиденья, радиоприемник с USB, антенна, динамики, система двойных осей для защиты заднего борта от переломов, угол подъема не менее 45°, устройство остановки кузова при максимальном поднятии, функция стряхивания кузова при разгрузке, электростеклоподъёмники |
| Опции | антивибрационный замок, антивибрационный замок на кузов, бронзовые подшипники скольжения для основной оси, встановлення єврофаркопу 50 мм на підготовлене шасі, выбор цвета, доплата за автоматические замки заднего борта с жесткими тягами, доплата за горячее цинкование лестницы, доплата за металлические крылья с антигравийным покрытием для 4х2, доплата за установку сложной крашеной стремянки на кузове, дополнительная гидролиния на прицеп, дополнительная КИП, дополнительный стабилизирующий упор кузова "ножницы", еврофаркоп, заднее защитное противоподкатное устройство, коробка отбора мощности при отсутствии на шасси, краново-манипуляторная установка, кузов из стали HARDOX, кузов из стали STRENX 700 (-1мм толщины), металлические крылья для колес задней оси, механическая КПП, отвал для уборки снега, отвал для уборки снега ВЛИВ-401 (4,0 м., скоростной, металлическое лезвие), отвал для уборки снега ВЛІВ-253 (гидравлический автономные органы управления, пластиковое лезвие), отвал для уборки снега ВЛІВ-253 GP (гидравлический автономный подъем, пластиковое лезвие), отвал для уборки снега ВЛІВ-273 (гидравлический автономные органы управления, пластиковое лезвие), отвал для уборки снега ВЛІВ-303 (гидравлический автономный подъем, пластиковое лезвие), отвал для уборки снега ВЛІВ-304 (3,0 м., профессиональный, гидр. управление, пластик), отвал для уборки снега ВЛІВ-305 (3,0 м., проф., гидр. управление, пластик, лемехи), отвал для уборки снега ВЛІВ-344 (3,4 м., профессиональный, гидр. управление, пластик), пескоразбрасывающее оборудование в кузов, пневмо и электро подготовка для присоединения прицепа, подогрев кузова выхлопными газами, поливомоечное оборудование в кузов, система ручного автономного поднятия кузова, складная стремянка на кузове, стклиз-удлинитель кузова, телескопический крюк для тента, тент с дугами, легкое сматывание/разматывание и козырьком, тент с козырьком, тент с приводом и козырьком, тент с системой сматывания и козырьком, трекер GPS слежения, увеличение на 1 мм толщины днища или бортов, за 1 мм (считать днище и борта отдельно значение суммировать), усиление задней балки под установку фаркопа, фронтальная щетка |
















